HawthorneVillager.com

Hawthorne Village (Milton) Discussion Board
It is currently Thu Apr 23, 2026 1:25 am

All times are UTC - 5 hours




Post new topic Reply to topic  [ 6 posts ] 
Author Message
PostPosted: Sat Jan 22, 2011 12:19 pm 
Offline

Joined: Thu Nov 15, 2007 3:55 pm
Posts: 5278
Location: 4th line / St Laurent
Update Feb 11th - I'm a little hesitant to post this due to the recent forum activity, but as a promise to my clients, I'm notifying you all that this listing is now active as of this morning. MLS2025599. (Just in case this offends Barb, yes, I have spent advertising dollars on it in other ways :)

Description and Pics are below - enjoy, and send any questions my way :)

-------------------------

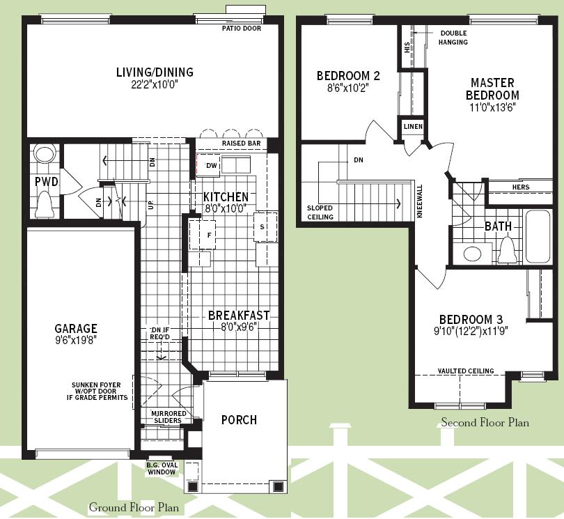
Located on a quiet street in the quiet south part of hHVE, this 3 bed 1.5 bath Mattamy “Bolton” model townhouse is absolutely gorgeous – It looks and feels BRAND NEW, and is ready to move into! The modern yet neutral colour selections throughout work with many decor choices – the photos and floorplan are below - have a look!


Main floor features include:
Dark stained kitchen cabinets with upgraded pantry
Eat-In kitchen with breakfast area
Tumbled stone backsplash
45 degree tilework
Sleek black appliances
Raised breakfast bar
Stained glass pendant lights
Garage Access door – stay out of the elements completely!
Upgraded carpet under-padding
Wide open Living room / Dining Room – Can be used as a family room + Den, or two separate formal areas, however you like!


The 2nd floor showcases:

Dark stained railings, which contrast the light neutral flooring
A nice sized master with His and Hers separate closets
Semi-ensuite bath access
2 more good sized bedrooms – this home feels practically new!


The Basement features:

3 piece washroom rough-in
Larger basement windows to allow more lighting in your future rec room
Wide-open laundry access
Central Air and Whole home humidifier to keep the air comfortable all year round
Note: **This home is Energy Star Certified** Save on your utility bills!!


The floor plan is below with some photos as well– email or call if you have any questions or if you would like a pre-MLS private showing!


Image

Image

Image

Image


Image

Image

Image


Image

Image

Image

Image

_________________
Fred De Carolis
FREDHELPS.COM or on Facebook
Thanks for your support in the
search for Milton's Favourite Realtor!

REVEL REALTY -- MILTON'S FAVOURITE REAL ESTATE BROKERAGE, as voted by YOU!!!


Last edited by Fred D on Fri Feb 11, 2011 1:00 pm, edited 3 times in total.

Top
 Profile  
Reply with quote  
 Post subject:
PostPosted: Sun Jan 23, 2011 9:07 am 
Offline
User avatar

Joined: Sat Jul 07, 2007 9:44 am
Posts: 1091
Location: HV
Good luck with your sale!

Shows well


Top
 Profile  
Reply with quote  
 Post subject:
PostPosted: Tue Feb 01, 2011 5:25 pm 
Offline

Joined: Thu Nov 15, 2007 3:55 pm
Posts: 5278
Location: 4th line / St Laurent
This listing will be going on MLS in about a week to 10 days, stay tuned!


Top
 Profile  
Reply with quote  
 Post subject:
PostPosted: Fri Feb 11, 2011 1:03 pm 
Offline

Joined: Thu Nov 15, 2007 3:55 pm
Posts: 5278
Location: 4th line / St Laurent
The listing is active as of this morning! MLS 2025599
Any questions, let me know.
Again, sorry if this is too many posts for some people, but I am sending this update out 10 days later as I promised my clients I would :)

Fred

_________________
Fred De Carolis
FREDHELPS.COM or on Facebook
Thanks for your support in the
search for Milton's Favourite Realtor!

REVEL REALTY -- MILTON'S FAVOURITE REAL ESTATE BROKERAGE, as voted by YOU!!!


Top
 Profile  
Reply with quote  
 Post subject:
PostPosted: Fri Feb 11, 2011 2:29 pm 
Offline

Joined: Fri May 19, 2006 11:53 am
Posts: 947
Location: I live in Hawthorne Village and sleep in Mississauga!
Hey Fred, the place looks great but one question. I thought the Bolton you were mentioning before was on Scott? This is a different one - no?

I'm asking this because I may have a client.

Cliff

_________________
Cliff Barron
Selling in Milton for over 14 years!
Sutton Group - Summit Realty Inc. Brokerage
#1, 07-18 company wide!

cbarron@sutton.com
http://www.callcliff.ca
905-286-5888


Top
 Profile  
Reply with quote  
 Post subject:
PostPosted: Fri Feb 11, 2011 2:53 pm 
Offline

Joined: Thu Nov 15, 2007 3:55 pm
Posts: 5278
Location: 4th line / St Laurent
Sure thing, give me a call if you like.

This is the same one - Pre-listing, my clients asked that the address not be disclosed, so all I could say publicly was that the home was in the Derry/Scott area near the south end of Scott.

It is indeed on Gleave, just off Scott. If you have any questions, give me a call or email, I'm available.

Thanks Cliff,
Fred


Top
 Profile  
Reply with quote  
Display posts from previous:  Sort by  
Post new topic Reply to topic  [ 6 posts ] 

All times are UTC - 5 hours


Who is online

Users browsing this forum: No registered users and 4 guests


You cannot post new topics in this forum
You cannot reply to topics in this forum
You cannot edit your posts in this forum
You cannot delete your posts in this forum
You cannot post attachments in this forum

Search for:
Jump to:  
Powered by phpBB® Forum Software © phpBB Group
[ Time : 0.046s | 11 Queries | GZIP : Off ]